
Fasilitas Kantor
Kantor kami dilengkapi dengan fasilitas yang memadai dan dirancang sesuai dengan standar operasional yang mendukung efisiensi serta keamanan distribusi.
Kepatuhan ini mengacu pada regulasi resmi dari Peraturan Kepala Badan POM serta ketentuan dari Dinas Kesehatan dan instansi terkait.
Kami berkomitmen untuk memastikan bahwa seluruh proses distribusi berjalan sesuai standar mutu dan ketentuan yang berlaku.
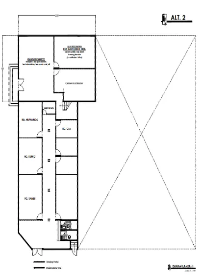
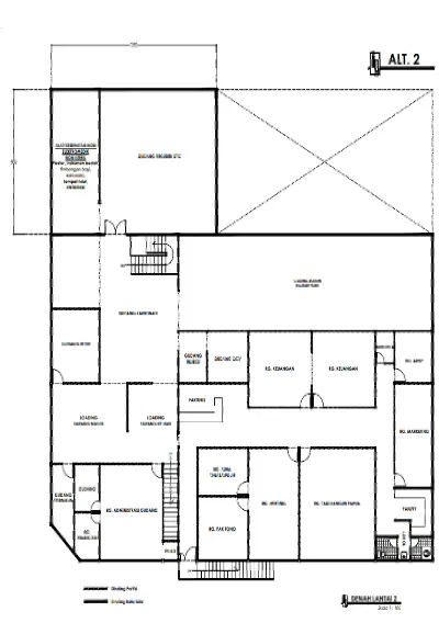
Denah Kantor PT Tabi Anugerah Pharmindo Jayapura


Fasilitas Kantor
- 1 Reseption
- 1 Ruangan meeting dilengkapi projector
- 1 Mushola
- 2 Toilet kantor
- 1 Toilet principal
- 1 Ruang Tunggu Kantor
- 1 Ruangan arsip
- 7 Ruangan tim principal
- 3 Mobil operasional kantor
- Lapangan parkir mobil dan motor
- Pantry
Fasilitas Gudang
- 1 Alur masuk dan keluar barang
- 1 Gudang CCTV
- 1 Gudang Psikotropik
- 4 Gudang Alat kesehatan
- 3 Pembagian suhu ruangan
- 3 Mobil pengantaran